Dauces Orchard at Gorsley Fields, Herefordshire
Gorsley Fields comprises two unique custom build sites, ‘Whipstocks’ and ‘Dauces Orchard’. Dauces Orchard has planning permission for the construction of 2 custom build homes with plots varying in size from 804m² to 821 m².
Dauces Orchard is located within the picturesque village of Gorsley, and comprises of two custom build plots, both of which have been granted planning permission for your dream custom build home.
Site Information
- Plot Sizes: 804m² to 821 m²
- Plot Prices: SOLD
- Planning Permission: Yes
- Utilities & Access: Yes
Plots for sale
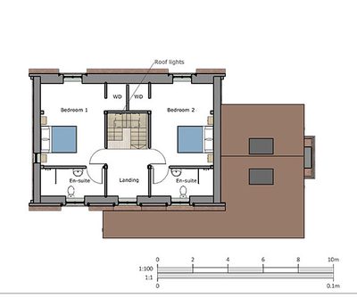
- Cottage style design (Brook)
- 3 bedrooms
- Completely tailored custom build opportunity
- Fully planning permission agreed and services will be provided
- A desirable, rural location
- Experienced project management available via our turnkey service
- Cottage style design (Brook)
- 4 Bedrooms
- Completely tailored custom build opportunity
- Outline planning agreed and services will be provided
- A desirable, rural location
- Experienced project management available via our turnkey service

Location Information
Explore Gorsley
Gorsley is an idyllic, countryside village bordering South Herefordshire and Gloucestershire. Nestled between three Areas of Outstanding Natural Beauty (AONB) the village is surrounded by beautiful backdrops as far as the eye can see.
While taking a leisurely stroll down Gorsley’s winding lanes and footpaths, you pass vast amounts of history. Christ Church, the Baptist Church which is home to Orchard Coffee House, the Baptist Chapel where you will find the village Post Office and Store, and the local pub, ‘The Roadmaker Inn’, all date back to the 19th century, as does Gorsley Goffs Primary School, who welcome children aged 5-11 years old.
When travelling further afield, Gorsley has fantastic access links to the motorway network, positioned just two minutes from junction three of the M50 leading up to the M5, or southbound to the A40. Specific trains from Hereford station allow for a direct commute to London, Birmingham, Cardiff and Manchester, and Gorsley is just over an hour from Bristol, Birmingham and Cardiff airports.





























