Spring Grove Meadow at Almeley, Herefordshire
Spring Grove Meadow offers you a unique oak frame home building experience, in the picturesque Herefordshire village of Almeley. The site comprises 4 custom build plots all with planning permission varying in size from 1183m² to 2586m².
Spring Grove Meadow is located in the picturesque Herefordshire village of Almeley. Each plot comes with existing planning permission, with the opportunity to gain new planning approval after working with our Architectural Design team.
Site Information
- Plot Sizes: 1183m² to 2586m²
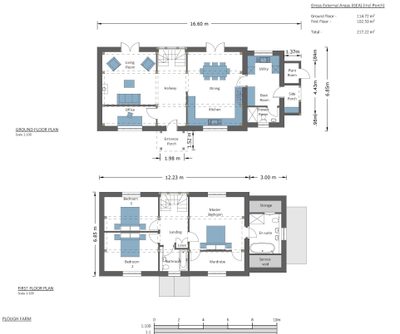
- House Sizes: 216m² to 217m²
- Plot Prices: £250,000 to £350,000
- Planning Permission: Yes
- Utilities & Access: Yes
Plots for sale
- Detailed planning permission for a Farmhouse style design (Plough)
- 3 bedrooms
- Completely tailored custom build opportunity
- A desirable, rural location
- Experienced project management available via our turnkey service
- Country contemporary design (Derndale) | 4 Bedrooms
- Completely tailored custom build opportunity
- A desirable, rural location
- Experienced project management available via our turnkey service
- Country contemporary style (Dinedor) | 3 Bedrooms
- Completely tailored custom build opportunity
- A desirable, rural location
- Experienced project management available via our turnkey service
- Detailed planning permission for a Farmhouse style design (Plough)
- 3 bedrooms
- Completely tailored custom build opportunity
- A desirable, rural location
- Experienced project management available via our turnkey service

LOCATION INFORMATION
Explore Almeley
Spring Grove is the epitome of an idyllic rural village, nestled amidst picturesque rolling fields with stunning vistas of the Black Mountains. Despite its tranquil surroundings, it boasts convenient access to the village's amenities. The vibrant village pub, known as 'The Bells', is a leisurely mile walk away. This establishment is not only renowned for its lively atmosphere but also houses a village shop and deli.
In Almeley, the community thrives around its bustling village hall, situated adjacent to the village green. This multipurpose space serves as both a venue for various events and gatherings and as a cricket pitch for the local Almeley Cricket Club. Almeley further enchants with its historic St. Mary's church, nestled beside the ancient remnants of Almeley Castle.



























